Friscanzana House ⠀⠀⠀⠀⠀⠀⠀⠀⠀⠀⠀⠀

Friscanzana house is a country mansion harmoniously placed in the network of drywalls and  typical paths  in the countryside surrounding the Sicilian town of Ragusa.

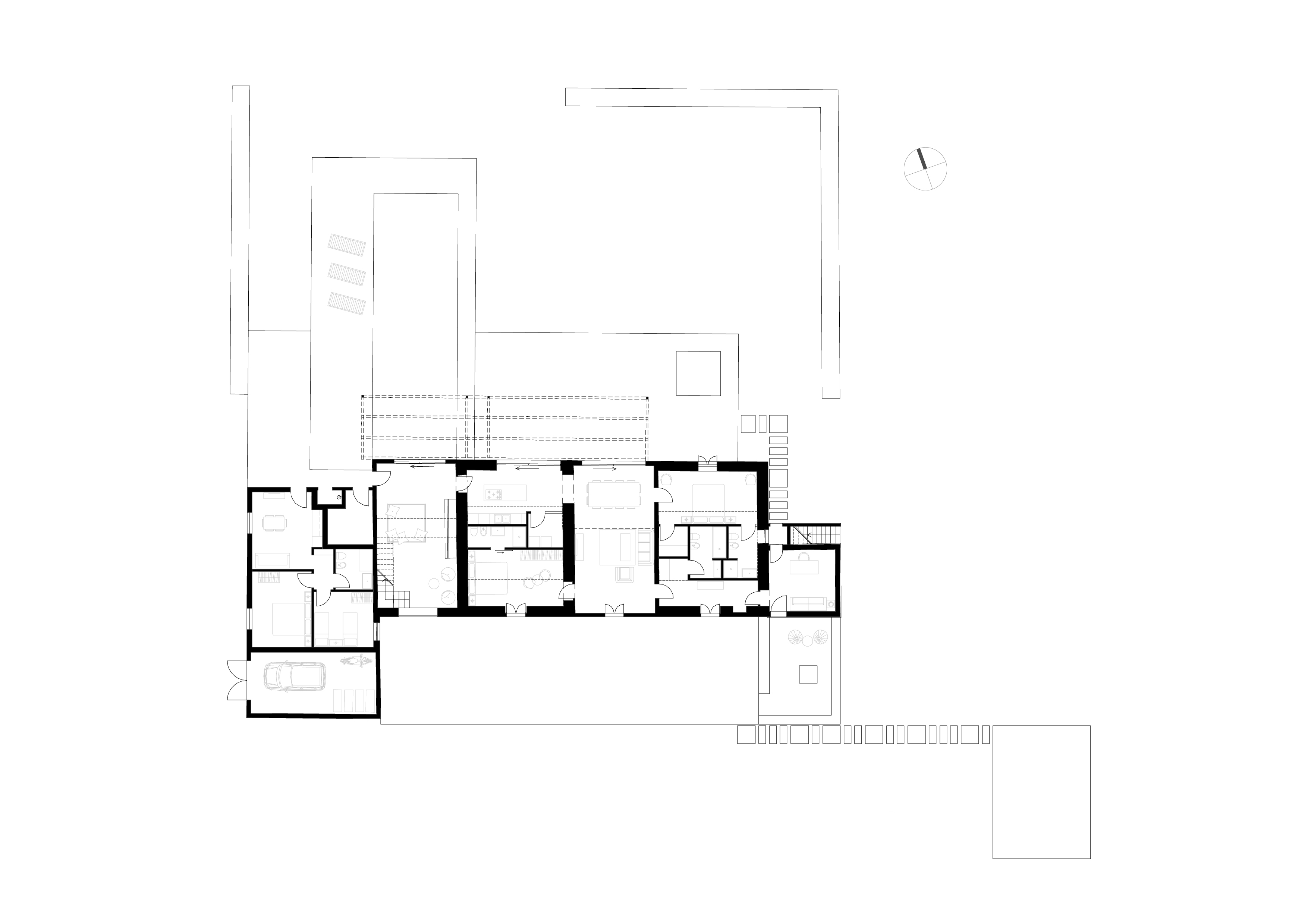
The house consists of  a main building, extending lenghtwise with a string of broad rooms divided by transversal bearing walls, and two juxtaposed annexes.

The project is based on a deep and (auto)ironical analysis of the Sicilian character, meant both as a body  of endemic behaviours and as an interpretation of clichés about the “Sicilian man” found in  the  media and particularly in movies.

Fimmina, Masculu, Duminica, Curtigghio, Lagnusia, Calura e Friscanzana, Tivitti (Woman, Man, Sunday, Courtyard/gossip, Laziness, heat&coolness, I saw you!) produce a project that portrays several moods, in a kaleidoscope of colours, materials and feelings.

With this in mind the tile, found in the existing building, has been redesigned and adjusted  to the colour palettes of each area and the building materials, stone, wood, canes, have been recovered and enhanced.

The interior of the building, with the transformation of the existing mezzanines, alternates private intimate spaces with high and bright public areas, in a harmonious conflict similar to the constantly hinted  Sicilian conditions.

The exteriors engage a dialogue with the surrounding  environment and the local building tradition:  the local stone sett paving and the original texture of drystone walls have been recovered as well as the original stone wall of the building.

The new pergola in the back, a protection from the summer heat, and the sand colour pool, restore the connection of this building with the Sicilian countryside tradition.

The clear plaster of the annexes and the recovered mid blue of the windows extend the scope to the Mediterranean tradition.

KEY WORDS: Tradition – Territory– Volume – Colour – Sicilian character – Warmth– Interiors – Light – stone – coolness (Friscanzana)

 

“Dumínica jurnata di sciroccu fora nan si po stari

ppì fari ‘n pocu ‘i friscumettu a finestra

a vanidduzza e mi vaiu a ripusari”

 

2019 – Built

Partita IVA 01723690853 | Codice Fiscale FCRLVI78B11F065Z
This site uses no cookie.